ФЕДЕРАЛЬНОЕ ГОСУДАРСТВЕННОЕ КАЗЕННОЕ
ОБЩЕОБРАЗОВАТЕЛЬНОЕ УЧРЕЖДЕНИЕ
«ПЕРМСКОЕ СУВОРОВСКОЕ ВОЕННОУ УЧИЛИЩЕ
МИНИСТЕРСТВА ОБОРОНЫ РОССИЙСКОЙ ФЕДЕРАЦИИ»
Шипилова Арина Сергеевна
Методическая разработка
Городошный спорт в системе дополнительного образования общеобразовательных организаций Министерства обороны Российской Федерации
| Утверждено на заседании ПМК физической культуры Протокол № Руководитель ПМК физической культуры ______________ С.В.Каленков
|
пгт. Звездный
2019 г.
Оглавление
| Введение……………………………………………………………………….. | 4 |
| Глава 1. Городки………………………………………………………………. | 6 |
| Глава 2.Организация и проведение соревнований………………………….. | 6 |
| 2.1 Правила соревнований……………………………………………………. | 9 |
| 2.2 Площадка и инвентарь. Оборудование………………………………….. | 10 |
| 2.3 Виды соревнований и способы их проведения…………………………. | 12 |
| 2.4 Участники соревнований………………………………………………… | 13 |
| Глава 3. Методика обучения и спортивной тренировки…………………… | 17 |
| 3.1 Методика физической подготовки………………………………………. | 17 |
| 3.2 Методика технической подготовки……………………………………… | 21 |
| 3.3 Комплекс специально и специально подготовительных упражнений… | 27 |
Автор-составитель Шипилова Арина Сергеевна, преподаватель физической культуры ФГКОУ «Пермское суворовское военное училище»
Аннотация
В методических рекомендациях представлены материалы о истории развития городошного спорта в России и его значение в системе здорового образа жизни среди населения. В рекомендацию включена методика физической и технической подготовки городошников, правила проведения и судейства соревнований.
Методические рекомендации предназначены для преподавателей физической культуры, инструкторов по физические культуре, тренеров.
Введение
Городки – старинная славянская и игра. История игры насчитывает несколько веков. Упоминание о городках можно найти в сказках, в старинных легендах, в документах, относящихся к истории Древней Руси. Городки как игра вошла в нашу историю как часть национальной культуры. Игра в городки развивает глазомер, сообразительность, точность движений, укрепляет мышцы рук и туловища. Игрой в городки увлекался полководец Ф.В. Суворов, преобразователь России царь Петр 1, монарх Николай 2. Игра в городки была излюбленным физическим упражнением для многих выдающихся деятелей отечественной науки, культуры, писателей. Среди них академик И.П. Павлов, генетик Н.В. Тимофеев- Ресовский, певец Ф.И. Шаляпин, музыкальный критик и композитор В.В.
Стасов, классики мировой литературы Л.Н. Толстой и А.М. Горький. Поэт В.В. Маяковский. В настоящее время игра не потеряла свою привлекательность.
Игра проса по правилам, проходит на открытых площадках, летом и зимой на свежем воздухе. Эта игра увлекательная, атлетическая, требующая силы, и ловкости, меткости и выдержки, хорошей координации движений. городки заставляют забыть о прожитых годах, они в буквальном смысле слова «всем возрастам покорны». Популярность этой игры объясняет не только тем, что она является отличным средством оздоровления, но и ее доступностью для людей самого разного возраста.
Существует федерация Городошного спорта, проводятся соревнования. «Имя Городки, данное в этой игре», - объясняется в Лейпцигском альбоме 1805 года, - происходит от одного селения, называемого Городок. Да и деревянные бруски, поставленные одни на другие, напоминают город, осаженный врагами». В Астраханской губернии эта игра называлась «стропилами»: в начерченный на земле четырехугольник ставили три деревяшки, соединенные вершинами вместе, как стропила крыши. То, что название игры связано с представлением о штурме крепости или города, показывают употреблявшиеся в ней термины и выражения. Если от удара биты первая чурка вылетала за пределы круга или четырехугольника, то это называлось «розжигом», «город» считался «зажженным», а те игроки, которые первыми начинали метать биту, назывались «зажигающими».
Суть игры – бросками бит (палок) выбить из «города» поочередно, определенное количество фигур, составленных из 5 городков – цилиндрических столбиков из березы, липы, бука. Главная задача – затратить на выбивание 15-ти фигур как можно меньше бросков. Кто по итогам трех туров использовал меньше попыток, тот и победил. Игра в городки заключается в выбивании фигур, построенных из пяти городков, с ограниченной площадки, называемой «городом», битами с определенного расстояния. Для игры в городки используются 15 фигур. В партии 10 фигур. Фигуры ставят и выбивают в определенной последовательности.
Глава 1. Городки
1.1 История возникновения и развития
Городки или рюхи, как их называли раньше, не упоминаются в подробном перечне игр и забав создателя сборника И. Е.Забелина. В историческом романе «Князь серебряный» А. Н. Толстой пишет, что в городки играли русские бояре времен Ивана Грозного. Как бывало, начнут ребята в городки играть, беда той стороне, что супротив тебя! – хвалится в романе воевода Морозов, - Разлетишься, словно сокол ясный, да как расходится в тебе кровь молодая». А. Н. Толстой писал роман в то время, когда игра в городки была распространена повсеместно.
А.Н. Толстой писал роман в то время, когда игра в городки была распространена повсеместно, и неосознанно перенес ее в времена Ивана Грозного. Самые ранние документы относятся к началу 19 века. Это цветные гравюры, содержащиеся в различных западноевропейских изданиях и сопровождаемые кратким описанием.
В 1803-04 годах в Лондоне художники Д.А. Аткинсон и Дж. Уолкер (Atkinson J.-A., Walker J.) издают трехтомный альбом «Живописное представление манер, обычаев и развлечений русских», где наглядно показана серия раскрашенных гравюр. Некоторые гравюры представляют дворовые забавы, в том числе игру в городки (рюхи). Причем в конце забавы проигравший должен носить победителя на своей спине под усмешки зрителей. Распространившись по всем губерниям Российской империи, игра эта обрела в народе самые разные названия. В средней полосе России, в Омской и Тобольской губерниях ее называли «рюхами», «чухами» или «чушками», в Вятской губернии – «деревянными бабками», в Черниговской Губернии – «кеглями», в Херсонской губернии – «сраклями», а на Кубани «клетками».
С самого начала чурки в «городах» устанавливались не хаотично, а в определенном порядке. На этот порядок указывает Лейпцигский автор 1805 года: «…брусков обычно пять, но иногда бывает семь или девять, причем одни поставлены на другие». Из этого следует, что из чурок составлялись те или иные фигуры, по которым затем били палкой – «битой». Фигуры начала 19 века не известны. Что касается конца 19 века, благодаря Е. А. Покровскому, установлена фигура, состоящая из 4 или 5 чурок, напоминающая нынешнюю фигуру «пушка». Интересным фактом является и то, что в немецком альбоме 1805 года и парижском альбоме 1812 года. Подтверждается что это игра русского простонародья, людей «из низших классов», - «кучеров и домашней прислуги».
В небольшой книжке «Дети с играми и забавами», изданной в Санкт-Петербурге в 1852 году, отпрыскам благородных фамилий рекомендуется играть в «кегли». Еще одно из описаний городков дается в «Сборнике игр и занятий для семьи и школы» составленным В. Висковатым в 1875 году. Указывается, что «города» имеют форму кругов, деревянные чурки называются «рюхами». В каждый «город» устанавливается по 6 рюх. В игре участвуют две партии игроков. Победившей считается та партия, которая раньше другой выбивает рюхи из «города» соперника. «По окончании игры партии меняются «городами», и проигравшая партия обязана построить два «города», то есть расставить рюхи». Это нужно понимать, что игра возобновлялась или переходила в новую стадию.
Отметим также, что первое описание игры poppi на финском языке было опубликовано в 1894 году в книге И.К. Инха, посвященной этнографии Русской Карелии. Когда говорят об игре в городки до Октябрьской революции и увлечении ими широких народных масс после 1917 года, обычно имеют ввиду игру по существу без правил. Как вид спорта, имеющий единые, городки сформировались к 1923 году, когда в Москве были проведены первые Всесоюзные соревнования этот год, является годом рождения городошного спорта. После Великой Отечественной войны стали строить покрытие металлическими листами, так как вес бит постоянно увеличивался, бетонные площадки стали быстро разбиваться. В послевоенные годы в СССР городки были одним из самых массовых видов спорта, уступая по популярности, пожалуй, только футболу. Городошные площадки были практически на всех стадионах, во всех домах отдыха, пансионатах, санаториях и пионерских лагерях, в парках и, даже, зачастую на территориях заводов и фабрик. В советской России игра в «городки» считалась пролетарской и противопоставлялась «буржуазным» играм типа кеглей, гольфа, бильярда.
Советская власть придала игре в «городки» официальный статус. 20 августа 1923 года были утверждены «Единые правила игры в городки», составленные методистом физкультуры В.С. Сысоевым. Этот день и считается днем рождения городошного спорта. Городки в сельской местности и в городах существуют параллельно друг другу.
В городах в конце 50-ч годов стали появляться площадки с металлическим покрытием, городошники стали встречаться с городошниками из других регионов, получать новую информацию об устройстве бит, технике броска, методике тренировок, быть в курсе изменений правил городошного спорта. В результате у них стали расти спортивные результаты, выполняться разрядные нормы вплоть до мастеров спорта. К сожалению, этот подъем в конце прошлого века, по некоторым причинам сменился спадом. Но есть мастера спорта, спортсмены принимают участие в календаре соревнований Российской Федерации. Сельские городки, в абсолютной своей части изменения не коснулись. Нововведения, что вносились в практику городошного спорта, приводили к улучшению спортивных результатов. Норма мастера спорта в 60-е годы была 162 биты на 90 фигур. В настоящее время – 132 биты на 90 фигур. 22 против 27 на 15 фигур.
Глава 2. Организация и проведение соревнований
2.1 Правила соревнований
ИГРА В ГОРОДКИ. ГОРОДОШНЫЕ ФИГУРЫ.
Игра в городки заключается в выбивании фигур, построенных из пяти городков, с ограниченной площадки, называемой «городом», битами с определенного расстояния.
Для игры в городки используются 10 или 15 фигур.
Последовательность и правильная и правильная их постановка в партии из 15 фигур показана на рис.1.
Рис. 1 Городошные фигуры
В партии из 10 фигур для детей (мальчики и девочки), младших юношей и девушек фигуры ставят и выбивают в следующей последовательности: 1. «Пушка», 2. «Вилка», 5. «Колодец», 4. «Стрела», 7. «Артиллерия», 12. «Серп»,
9. «Пулеметное гнездо», 14. «Самолет», 13. «Тир», 15. «Письмо»
Все фигуры, кроме фигуры «Письмо», ставят на середине лицевой линии «Города», не выходя за его пределы, в соответствии с требованиями «Регламента постановки фигур».
Угловые городки фигуры «Письмо» ставят по внешней линии «Города» не выходя за его пределы, так, чтобы в углах образовывались равнобедренные треугольники. Городок, обозначающий «Марку» устанавливают в центре диагонали, идущей от заднего правого угла «Города» до переднего левого угла (для играющих правой рукой), или в центре диагонали, идущей, от заднего левого угла до переднего правого угла «Города» (для играющих левой рукой).
Фигуру «Серп» для играющих левой рукой устанавливают в левой половине «Города» в «зеркальном отображении»
Последовательность и количество выбиваемых фигур могут быть изменены в зависимости от системы проведения соревнований. Все изменения могут быть отражены в Положении.
2.2 Площадка и инвентарь. Оборудование.
ГОРОДОШНАЯ ПЛОЩАДКА И ЕЕ ОБОРУДОВАНИЕ.
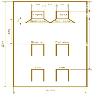
Городошная площадка размещается на ровном горизонтальном земельном участке размером 30(22) x15(12) метров рис.2
Оборудование городошной площадки: Металлические или полимерные листы, на которых контрастирующей краской наносятся линии «городов» и «пригородов». Толщина металлического листа 10 мм, материал сталь (ЗПС). Оптимальная ширина листов-1,33-1,5м. Листы укладываются таким образом, чтобы их стык строго совпадал с осевой линией «города» и «пригорода». Стык листов кладется на меньшую полку угловой стали 75х50х3; ограждение; осветительные приборы; фиксированные съемные планки высотой 40 – 50мм на лицевых линиях конов и полуконов; навесы для укрытия игроков и секретаря от атмосферных осадков.
Желательно оборудование общего навеса (над «городами», «пригородами» и отбойной стенкой).
Металлические (полимерные) листы, на которых размечаются два «города» с «пригородами», должны покрывать площадь не менее 8,0х3.2 м, располагаться строго горизонтально (круглый городок, катящийся в «городе» или «пригороде» с малой скоростью, должен замедлять движение в любом направлении при отсутствии на него внешнего воздействия.
Площадь, ограниченная боковыми линиями, передней планкой, из пределов которой производятся броски по фигурам, называется коном. Расстояние от планки кона до лицевой линии – 13м (для старших юношей и мужчин), 11м (для старших девушек и женщин) и 6.5 м (для детей и младших юношей и девушек).
Площадь, ограниченная боковыми линиями, передней планкой и планкой кона сзади из пределов которой производятся броски после выбивания хотя бы одного городка (кроме фигуры «Письмо»), называется полуконом. Расстояние от передней планки полукона до лицевой линии – 6.5м. Поверхность конов и полуконов должна быть достаточно твердой, исключающей скольжение обуви. Наиболее предпочтительными покрытиями являются асфальт или специальные синтетические покрытия.
«Город» - зона, имеющая форму квадрата со стороной 2 м, в пределах которой устанавливаются фигуры.
«Пригород» - зона, находящаяся между лицевой и штрафной линиями, ограниченная с боков продолжениями диагоналей «города». По центру «Пригорода» на расстоянии 20 и 40 см от штрафной линии наносят краской две отметки длиной 20 см, для установки на них «штрафных» городков.
Штрафная линия и площадь, находящаяся перед ней, называется штрафной зоной. Ее засыпают песком или покрывают мелом из водной суспензии.
Боковые линии кона и полукона должны находиться строго напротив боковых линий «города» с учетом того, что ширина ограничительных линий «города» и «боковых линий «пригорода» входят в размеры «города» и «пригорода», а ширина ограничительных линий кона и полукона в размеры этих зон не входят.
Линии разметки шириной 2 см окрашивают краской, контрастирующей с покрытием.
ИНВЕНТАРЬ
Городок может иметь форму цилиндра диаметром 48-50 мм или прямоугольного параллелепипеда, имеющего в сечении квадрат со стороной 45-47 мм, длиной 200+-1мм. Городок изготавливается из древесины, может быть окрашен и не должен иметь каких-либо полостей. Торцы городков должны иметь фаску 2-3 мм. Для проведения всероссийских и квалификационных соревнований применяются цилиндрические городки.
Бита представляет собой цилиндр произвольного (для мужчин и юношей) веса, длиной не более метра. Вес биты для девушек не может превышать 2 кг, для женщин 2.5 кг. Диаметр биты – произвольный в любой ее части. Бита собирается из вставок, втулок, концевого стакана и ручки. Наиболее целесообразно изготавливать вставки из древесно – слоистого пластика или кизила, Длина втулки должна быть не менее двух диаметров вставки. Вставки должны соединяться плотно втулками и закрепляться кернением или другим способом крепления. Глубина запрессовки вставки – не менее чем внутренний диаметр втулки. Расстояние от края втулки до места крепления – 10 -15 мм (за исключением крепления ручки). Составные части не должны иметь взаимных перемещений. Полимерная бита может изготавливаться из полимерной трубы, полимерных стержней или может быть составной. Вес полимерной биты не должен превышать 2 кг. Составная полимерная бита может иметь внутри металлический стержень и резьбовые соединения, обеспечивающие необходимую прочность. Полимерные биты не должны иметь внешних выступающих металлических частей. Составные части не должны смещаться относительно друг друга.
2.3 Виды соревнований и способы их проведения
Виды соревнований (дисциплин). Соревнования подразделяются на:
- личные;
- парные;
- парные (смешанные);
- командные;
- лично – командные.
Вид соревнования в каждом конкретном случае определяется положением. В личных соревнованиях участники выступают индивидуально. В парных соревнованиях участники выступают парами:
- мужскими (юношескими),
- женскими (девичьими) и смешанными.
В командных соревнованиях участники выступают командами. Состав команды и порядок проведения соревнования определяется Положением.
В лично – командных соревнованиях участники могут выступать и в личном, и в командном зачетах. Победитель соревнований определяется по сумме очков, набранных участниками в личном зачете, или по сумме очков, набранных в личном и командном зачетах.
Способы проведения соревнований.
Личные, парные, и командные соревнования могут проводиться:
- из определенного количества партий;
- на выбивание установленного количества фигур;
- по круговому способу;
- по способу с выбыванием;
- по смешанному способу.
Количество партий, выбиваемых фигур, также порядок постановки фигур определяется Положением.
2.4 Участники соревнований.
Возраст участников соревнований. В зависимости от возраста участники делятся на группы:
- дети (мальчики и девочки) 9-12 лет;
- младшие юноши и девушки 13-14 лет;
- старшие юноши и девушки 15-18 лет;
- юниоры и юниорки 19-25 лет;
- мужчины и женщины 26-54 года;
- ветераны 55 лет и старше.
Дети, младшие юноши и девушки играют с расстояния 6,5 м кон и полу-кон. Старшие юноши, юниоры и мужчины играют с расстояния 6,5 м полукон и 13 м кон. Расстояние для игры ветеранов определяется Положением. Примечание: при проведении всероссийских соревнований ветераны играют с кона 13 м.
Для участия в соревнованиях городского и выше уровней каждый спортсмен должен иметь справку о допуске к соревнованиям, подписанную врачом, заверенную личной печатью врача или печатью медицинского учреждения. Допускается оформление заявления участника соревнований о личной ответственности за состояние здоровья.
Участники соревнований младших, юниорских, старших возрастных групп могут быть допущены к соревнованиям с разрешения главного судьи при условии соответствия их технической подготовленности и уровню соревнований.
ФОРМА ОДЕЖДЫ.
Участники должны быть одеты в спортивную форму, соответствующую погоде и условиям проведения соревнований.
Участники команды должны быть одеты в единую спортивную форму с соответствующей эмблемой. Каждый участник должен иметь на спине порядковый номер, под которым он записан в протоколе. Номер должен быть различим с любого расстояния в пределах площадки.
Капитан команды должен иметь на рукаве повязку, отличающуюся от формы по цвету, или знак «Капитан».
ПРЕДСТАВИТЕЛЬ(ТРЕНЕР)
Команду, участвующую в соревнованиях, представляет тренер (представитель)
Тренер (представитель) является руководителем команды. Он несет ответственность за соблюдение спортивного режима, дисциплину, четкое выполнение спортсменами правил и положения о соревновании. Тренер (представитель) участвует в жеребьевке, присутствует на заседаниях судейской коллегии, если они проводятся совместно с тренерами (представителями) Тренер (представитель) имеет право находиться при команде. Ему запрещается вмешиваться в действия судей на площадке.
В каждой команде один из участников избирается капитаном команды.
В отсутствии тренера (представителя) он является руководителем команды. Он один имеет право обращаться к судье. Капитан несет ответственность за дисциплину в команде во время игры. Капитан следит за последовательностью установки фигур и очередностью выхода участников в каждом заходе.
Если капитан покидает площадку, то он сообщает судье номер и фамилию участника, который в его отсутствие будет выполнять функции капитана команды.
ПРАВИЛА И ОБЯЗАННОСТИ УЧАСТНИКОВ СОРЕВНОВАНИЙ
Участники соревнований имеют право:
- на разминку перед началом игры в течение 10 минут в личных соревнованиях. В командных соревнованиях длительность разминки определяется из расчета 5-ти минут на каждого участника команды;
- обращаться к судье в личных соревнованиях. В случае несогласия с решением судьи обращаться к главному (старшему) судье (в командных соревнованиях таким правом обладает только капитан);
- подать протест на решение судьи в течение часа, о чем сделать соответствующую запись в протоколе после окончания игры;
- опротестовать результат встречи в случае нарушений Правил и Положения.
Все апелляции подаются в главную судейскую коллегию (Федерацию) в письменной форме в течение часа после окончания встречи;
- на получение медицинской помощи;
- на помощь одного или двух ассистентов в личных соревнованиях;
Участники соревнований обязаны:
- знать и выполнять Правила и Положение о соревнованиях;
- вести себя в духе честного соперничества;
- быть вежливыми, тактичными и честными по отношению к судьям и соперникам;
- избегать действий, направленных на задержку игры и действий, которые могут быть расценены как таковые;
- во время игры не производить никаких действий, мешающих сопернику.
Победителем игры городки считается игрок или команда, затратившие на выбивание городошных фигур наименьшее количество бит. Городошные фигуры начинают выбивать с кона (дальней линии). Если выбить хотя бы один городок, оставшиеся городки выбиваются с полукона (ближней линии). Фигуру (Закрытое письмо) выбивают только с кона, причем сначала – городок в центре, обозначающий «Марку». В каждой партии игры может разыгрываться 6,10. или 15 фигур. Все городошные фигуры, кроме 15 строятся на лицевой линии города. Городок считается выбитым когда он полностью вышел на заднюю или боковые линии города. Если городок вылетит вперед к штрафной линии или за ее пределы в направлении полукона, то о ставится в пригород против центра города: в 20 см от штрафной линии, если из городошной выбит хотя бы один городок или в 40 см, если из городошной фигуры не выбит ни один городок. Городок, вышедший за линию и вновь вкатившийся в город считается выбитым.
рис. 2 Площадка для игры в городки.
Глава 3. Методика обучения и спортивной тренировки
3.1 Методика физической подготовки
ГИМНАСТИЧЕСКИЕ УПРАЖНЕНИЯ С ГИМНАСТИЧЕСКОЙ
ПАЛКОЙ
Упражнения для мышц рук и плечевого пояса.
Упражнения для мышц туловища и шеи.
Упражнения для мышц ног и таза.
ЛЕГКОАТЛЕТИЧЕСКИЕ УПРАЖНЕНИЯ
ПОДВИЖНЫЕ ИГРЫ
ВИСЫ И ЛАЗАНИЕ ПО КАНАТУ
УПРАЖНЕНИЯ ДЛЯ РАЗВИТИЯ СКОРОСТНЫХ И СИЛОВЫХ
КАЧЕСТВ
УПРАЖНЕНИЯ С РЕЗИНОВЫМ ЭСПАНДЕРОМ И НАБИВНЫМИ МЯЧАМИ
ПОДГОТОВИТЕЛЬНЫЕ БРОСКОВЫЕ УПРАЖНЕНИЯ НА
МЕТКОСТЬ
КРОССОВАЯ ПОДГОТОВКА, ПЛАВАНИЕ, ЛЫЖНАЯ ПОДГОТОВКА И Т.Д.
3.2 Методика технической подготовки
Под технической подготовкой следует понимать процесс освоения спортсменом системы движений (техники вида спорта), соответствующий особенностям данной спортивной дисциплины и направленной на достижение высоких спортивных результатов. Основной задачей технической подготовки спортсмена является обучение его основам техники соревновательной деятельности или упражнений, служащих средствами тренировки, а также совершенствование избранные для предмета состязания форм спортивной техники. В процессе технической подготовки необходимо добиться от спортсмена чтобы его техника выполнения движений отвечала следующим требованиям:
Результативность техники обуславливается ее эффективностью, стабильностью, экономичностью, вариативностью, минимальной тактической информативностью для соперника.
Эффективность техники определяется ее соответствием решаемых задач и высоким конечным результатом, соответствием уровню физической, технической, психической подготовленности.
Стабильность техники связана с ее помехоустойчивостью, независимостью от условий, функционального состояния спортсмена.
Современная тренировочная и особенно соревновательная деятельность характеризуется большим количеством сбивающих факторов. К ним относятся активное противодействие соперников, прогрессирующее утомление, непривычная манера судейства, непривычное место соревнований. Оборудование, недоброжелательное поведение болельщиков и др. Способность спортсмена к выполнению эффективных приемов и действий в сложных условиях является основным показателем стабильности и во многом определяет уровень технической подготовленности в целом.
Вариативность техники определяется способностью спортсмена к оперативной коррекции двигательной деятельности в условиях соревновательных состязаний.
Экономичность техники характеризуется рациональным использованием энергии при выполнении приемов и действий целесообразным использованием времени и пространства. При прочих равных условиях лучшим является тот вариант двигательных действий, который сопровождается минимальными энергозатратами, наименьшим напряжением психических возможностей спортсмена.
Минимальная тактическая информативность техники для соперников является важным показателем результативности в спортивных играх и единоборствах. Совершенной здесь может быть такая техника, которая позволяет маскировать тактические замыслы и действовать неожиданно. Поэтому высокий уровень технической подготовленности предусматривает наличие способности спортсмена к выполнению таких движений, которые с одной стороны, достаточно эффективны для достижения цели, а с другой – не имеют четко выраженных информативных деталей, демаскирующих тактический замысел спортсмена.
Условно различают общую техническую и специальную техническую подготовку. Задачи общей технической подготовки заключаются в расширении фонда двигательных умений и навыков, а также в развитии двигательно-координационных способностей, которые содействуют техническому совершенствованию в избранном виде спорта.
Основной задачей в специальной спортивно-технической подготовке является формирование таких умений и навыков, выполнения соревновательных действий, которые позволяют спортсмену с наибольшей эффективностью использовать свои возможности в соревнованиях и обеспечивают прогресс технического мастерства в процессе занятий спортом.
Средствами технической подготовки являются общеподготовительные, специально-подготовительные и соревновательные упражнения. В процессе спортивной тренировки двигательные умения несут вспомогательную функцию. Она может проявляться в двух случаях:
Когда необходимо освоить подводящие упражнения для последующего разучивания более сложных двигательных действий.
Когда необходимо добиться простого усвоения техники соответствующих двигательных действий, формирование умений является предпосылкой для последующего формирования двигательных навыков. В каждом большом цикле тренировок можно выделить три этапа технической подготовки:
1-й этап совпадает с первой половиной подготовительного периода больших тренировочных циклов, когда вся подготовка спортсмена подчинена необходимостью становления спортивной формы. Это этап создания модели новой техники соревновательных движений, ее улучшения, практического усвоения, разучивания отдельных элементов, входящих в состав соревновательных действий и формирования общей координационной основы; 2-й этап. Техническая подготовка направлена на углубленное освоение и закрепление целостных навыков соревновательных действий как компонентов спортивной формы. Он охватывает значительную часть второй половины подготовительного периода больших тренировочных циклов. Специальный, подготовительный и этап перед соревнованиями;
3-й этап. Техническая подготовка строится в рамках непосредственной подготовки перед соревнованиями подготовки и направлена на совершенствование приобретенных навыков, моделирование соревновательных программ, увеличение диапазона их целесообразной вариативности и степени надежности применительно к условиям основных соревнований.
Простая, незамысловатая техника игры в городки, доступный инвентарь дают возможность обучать этой игре детей дошкольного возраста.
Техническую подготовку занимающихся нужно начинать с изучения и освоения элементов игры — бросков бит по фигурам и отдельным городкам с кона и полукона. На первом практическом занятии занимающимся даются необходимые сведения о выборе биты, способах держания ее и основных приемах игры. Изучение элементов игры проводится на легких стоячих фигурах — это помогает занимающимся скорее достигнуть результатов в выбивании фигур и отдельных городков. Обучение ударам по полным фигурам следует начинать с полукона.
Далее изучаются удары по более трудным фигурам с учетом специфики каждой из них, а также удары по отдельным городкам, лежащим в различных местах города и пригорода. Особое внимание уделяется выработке броска с полным правильным разворотом биты. По мере освоения основных элементов техники игры проводятся учебно-соревновательные игры на 10 фигур по правилам игры. Целесообразно к таким играм привлекать опытных городошников, которые играли бы в каждой команде новичков.
Основной элемент техники – это бросок биты. Однако здесь недостаточно одной точности, необходим, кроме того, и точный расчет. Мало попасть битой в фигуру, нужно еще, чтобы она полностью развернулась у цели и соприкоснулась с наибольшим числом городков. Поэтому игре необходимо хорошо отработать бросок, чтобы бита всегда вращалась с одной скоростью и делала полный оборот вокруг своего центра тяжести, пролетев каждый раз одинаковое расстояние. Результативность броска зависит от многих причин: степени владения избранным способом броска, захвата ручки, правильного выбора места, врождённой координации, настойчивости и упорства в овладении навыками игры.
Техника броска биты состоит из следующих элементов:
- хват или держание биты за ручку;
- исходное положение - стойка;
- замах - отведение биты;
-разгон биты;
- выброс или финальное усиление.
ХВАТ
«Хватом» называют удержание биты кистью. Существует много его разновидностей. Различают глубокий хват – конец ручки биты выходит за пределы кисти; средний – граница мякоти кисти совпадает с концом ручки; мелкий – ручка заканчивается под мизинцем руки игрока. Разучивание хвата можно начинать уже в ясельной группе. Подводящим упражнением является обучение броску в горизонтальную цель способом снизу от себя. Процесс обучения проводится в игровой форме, и называется "Пирожок для бабушки". Метание проводится в обруч мешочком с песком весом 150 г, с небольшого расстояния. Мешочек лежит на ладони прямой руки, большой палец врозь, удерживает мешочек сверху. Бросок выполняется замахом снизу от себя. В младших и средних группах во время метания обращается внимание на исходное положение (стойка): левая нога впереди, правая сзади, мешочек в правой руке (для правши), для левши – наоборот. Расстояние до обруча увеличивается до 2-3 м. Внимание детей обращается на то, что заступать за линию или наступать на неё нельзя. В старших и подготовительных группах обучение игре проводится на открытой городошной площадке. Обучение начинается городками и битами из пластика. С освоением элементов техники игры, правил и навыков владения инвентарём, обучение продолжается игрой в деревянные городки. Обучение технике проводится с жёстким соблюдением требований мер безопасности и предупреждения травматизма.
Зрители и обучаемые находятся сзади игроков на значительном удалении, но с доступным обзором. Процесс обучения проводится на учебных занятиях воспитателем по физической культуре, на прогулке и в самостоятельной игровой деятельности под контролем воспитателей групп. Все действия детьми выполняются только по команде: "Можно взять биту", "Можно выполнить бросок", "Собрать биты" и пр.
Для дошкольников "город" имеет размеры 1,5х1,5 м. Обучение игре начинается с выбивания фигуры "заборчик". В ней городки выставляются вертикально на одной линии на расстоянии 10-15 см друг от друга. Эта фигура имеет большой объём, что облегчает её выбивание, повышает эмоциональную заинтересованность детей и стремление к совершенству. Игрок располагается на линии полукона на расстоянии 3 м от города и принимает исходное положение (стойку).
СТОЙКА
Постановка ног. Правая стопа ставится впереди на расстоянии шага от левой. Вес тела равномерно распределяется на обе ноги, не наступая на линию.
Туловище занимает естественное положение по отношению к постановке ног и раскрепощено, насколько позволяет удержание биты в руках. Голова направлена лицом к фигуре и остаётся в таком положении или близко к нему в течение всего броска. Продольная ось биты направлена в сторону фигуры.
ЗАМАХ
Замах начинается с переноса веса тела на толчковую ногу, правая нога при этом незначительно сгибается в коленном суставе. Плечи немного отводятся назад и поворачиваются по часовой стрелке, увлекая руки с битой через сторону назад. Левая рука лёгким толчком освобождается от биты в направлении её, и продолжает закручивать плечи с позвоночным столбом. Правая рука продолжает отводить биту назад, постепенно выпрямляясь в локтевом суставе.
ВЫБРОС
Весь разгон и выброс правая рука выпрямлена и всю работу выполняет от плеча как одно целое с битой. Заканчивается бросок выбросом биты.
При переходе на обучение игре деревянными городками, из них строятся фигуры. Плакат с изображением городошных фигур, должен находиться в непосредственной близости от городошной площадки, в спортивном зале и в спортивных уголках групп. Это позволяет детям запоминать конфигурацию фигур, варианты их построения. При неблагоприятных погодных условиях, в зимнее, ненастное весеннее и осеннее время, обучение и совершенствование элементов техники игры в городки может проводиться в спортивном зале на универсальной разметке. На ней есть линия построения фигур, линия кона и полукона. Закрепление навыков техники и элементов игры проводится только пластиковыми городками на учебных занятиях, проводимых круговым поточно-дифференцированным методом на одной из тренировочных зон.
Игра в городки круглогодична. Ими занимаются как летом, так и зимой (на ледяных площадках). В связи с этим учебно-тренировочная работа по городкам в каждом спортивном сезоне делится на три периода.
Подготовительный период — примерно с 15 апреля по 15 мая и с 15 декабря по 15 января.
Основной период — с 15 мая по 15 ноября и с 15 января по 15 марта.
Переходный период — с 15 ноября по 15 декабря и с 15 марта по 15 апреля.
Подготовительный период длится месяц-полтора; в это время в основном осуществляется физическая подготовка занимающихся. В занятия включаются строевые, порядковые, общеразвивающие и специальные гимнастические упражнения, а также элементы лёгкой атлетики. Большое внимание уделяется укреплению мышц и связочного аппарата ног, рук и плечевого пояса. Заканчивается сдачей нормативных требований. Кроме того, изучаются правила игры в городки и происходит подготовка занимающихся к судейству.
Практические занятия городками начинаются с восстановления техники игры: фигуры выбиваются с сокращенных дистанций, и основное внимание обращается на точность, а не на силу бросков занимающихся. После достаточного восстановления техники следует приступить к совершенствованию ударов по сложным лежачим фигурам и по отдельным городкам, находящимся в разных частях города и пригорода.
Затем нужно провести ряд учебных игр и, наконец, — товарищеские встречи, в которых особое внимание уделяется сыгранности игроков команды. Каждой товарищеской игре должен предшествовать разбор предполагаемой игры, а после проведения ее — анализ с целью вскрыть недостатки и устранить их в последующих учебно-тренировочных занятиях. В этом же периоде игроки должны уделить внимание изготовлению бит и тренироваться уже теми битами, которыми они будут пользоваться в календарных играх.
Основной период — самый продолжительный и непосредственно зависит от сроков проведения календарных соревнований. В тренировке отдельных игроков и команды в целом основное место занимает совершенствование ударов с кона и с полукона.
Целесообразно вести тренировку битами с оковкой, изготовленными собственными силами с учетом всех индивидуальных особенностей игроков. Особое внимание нужно уделять сыгранности команды и устранению недостатков, выявленных в предшествующих играх. Для этого требуется еще раз проверить правильность расстановки игроков по номерам, так как взаимодействие их достигается именно этим.
Правильная расстановка игроков, хорошо бьющих с кона или с полукона, является ведущим тактическим элементом игры в городки. Обычно сильнейшие игроки команды занимают 1 и 5-й номера. Помимо этого, важно, чтобы команда всегда тренировалась в одном составе и вела учет своих достижений, например, подсчитывая количество бит, затраченных на выбивание 10—15 фигур. Также совершенно необходимо вести разбор проведенных и предстоящих календарных игр.
Переходный период короче подготовительного и тем более основного и может совпадать с текущими отпусками игроков. Однако в этом периоде игроки не должны прекращать занятия физическими упражнениями. Спортсменам необходимо проводить активный отдых, ежедневно занимаясь утренней гимнастикой и участвуя в прогулках.
При занятиях городками зимой на открытой площадке необходимо научить игроков перед выполнением ударов каждой очереди делать интенсивные, но кратковременные разминки.
3.3 Комплекс специально и специально подготовительных упражнений
Упражнения для развития точности полета биты, стабилизации относительной скорости вращения и плоскости вращения биты;
ХВАТ РУЧКИ БИТЫ
Упражнения:
- выполнение свободного мелкого и свободного среднего хвата в замок; выполнение выпада с правой ноги на левую, с отведенной в сторону рукой;
- выполнение выпада левой ногой вперед с переносом на нее ОЦМ, рука, имитирующая хват, отведена в сторону и супинирована во всех суставах;
- выполнение выпада левой вперед с переносом на нее ОЦМ и поворотом выпрямленного туловища влево, рука, имитирующая хват, супинирована и отведена в сторону.
Средства и методы:
Объяснение и показ. Выполнение упражнений подводящих к пониманию динамической структуры броска, роли хвата и положения ладони (вверх, вниз). Повторный показ и применение метода текущей информации в момент выполнения упражнения занимающимися.
2. ИСХОДНОЕ ПОЛОЖЕНИЕ
Упражнения:
- выполнение исходного положения для начала замаха;
- выполнение поворота туловища вправо из исходного положения;
- выполнение выпада левой вперед из исходного положения с переносом ОЦМ на левую ногу;
- выполнение выпада левой вперед из исходного положения с поворотом туловища влево на носке левой ноги.
Средства и методы:
Объяснение и показ исходного положения. Выполнение имитационных упражнений. Повторный показ и применение метода текущей информации в момент выполнения упражнений.
3. ЗАМАХ (ЗАВЕДЕНИЕ БИТЫ НАЗАД В ГРУППИРОВКЕ)
Упражнения:
- выполнение имитации замаха без биты со зрительным контролем;
- выполнение замаха с битой со зрительным контролем;
- выполнение замаха со зрительным контролем со стороны партнера;
- выполнение замаха с битой с акцентом на группировке;
- выполнение имитации замаха без биты, с последующим поиском опоры для выпада левой ногой;
- выполнение замаха с битой, с последующим поиском опоры для выпада левой ногой;
- выполнение имитации замаха без биты, поиск опоры левой ногой, толчком правой выпад на левую ногу.
Средства и методы:
Объяснение и показ в целом. Показ механизма замаха с фиксацией в конце этой фазы броска – группировке. Выполнение имитационных упражнений без биты и с битой. Многократный показ и применение метода срочной информации в момент выполнения занимающимися техники замаха.
4. «ХЛЕСТ» В ФАЗЕ ВЫБРОСА
Упражнения:
- И.П. - стойка, ноги в положении выпада, левая впереди, руки максимально расслаблены. Медленный поворот верхнего плечевого пояса вправо и резкий, с рывком локтя левой руки влево назад, поворот влево;
- выполнение «броска правой руки от плеча» (резкое движение правого плечевого сустава вперед с быстрым торможением и обгоном его расслабленной рукой);
- выполнение «броска правой руки с битой от плеча» (движение плечевого сустава с резким торможением и хлестообразным движением руки с последующим выпуском биты).
Средства и методы:
Демонстрация и объяснение техники выброса с акцентом на элементе «хлеста». Демонстрация броска в целом с акцентом на фазе выброса. Выполнение обучающимися специальных упражнений с речевой информацией тренера о правильности движений и голосовым лидерством элементов броска.
5. РАЗГОН И ВЫБРОС БИТЫ
Упражнения:
- И.П. - группировка в замахе. Выполнение выпада вперед левой, толчком правой перенос на левую ОЦМ с одновременным быстрым выпрямлением в тазобедренном и коленном суставах.
- И.П. - группировка в замахе. Выполнение выпада левой, толчком правой поворот бедра и таза с переносом на левую ОЦМ, с одновременным выпрямлением в суставах и вращением на носке левой ноги. Левая рука резким движением локтя влево назад помогает закрутке, правая нога тормозит вращение.
Движение, аналогичное упражнению № 1, но выполняется с уступающим сопротивлением партнера, который держит за руку, имитируя момент инерции биты.
Движение, аналогичное упражнению № 2, но выполняется по методу упражнения № 3 (с помощью партнера).
Движение, аналогичное упражнению № 2, но выполняется с битой, в медленном темпе, со зрительным контролем, без выпуска биты.
Движение, аналогичное упражнению № 5, но выполняется в среднем темпе.
Движение, аналогичное упражнению № 6, но без зрительного контроля.
Движение, аналогичное упражнению № 7, но с выпуском бит в направлении «квадрата».
- И.П. - группировка в замахе. Разгон и выброс биты в направлении «квадрата» осуществляется в полную силу, без зрительного контроля.
Средства и методы:
Многократный показ и объяснение техники всего броска с подробным разбором фазы разгона и выброса. Изучение кинограмм, рисунков и видеозаписей. Демонстрация техники броска с объяснением скоростно-силовой структуры движений в фазе разгона и выброса. Выполнение легкой битой техники разгона и выброса с синхронной речевой информацией о правильности движений. «Проводка» занимающихся по движению.
6. ТЕХНИКА «СВЯЗКИ» ДВУХ ФАЗ: ЗАМАХА И РАЗГОНА
Упражнения:
- Выполнение имитации замаха с переходом в пассивную фазу разгона, без биты, в медленном темпе, со зрительном контролем.
- Выполнение движения, аналогичного упражнению № 1, но с битой.
- Выполнение движения, аналогичного упражнению № 1, но в среднем темпе, без зрительного контроля.
- Выполнение движения, аналогичного упражнению № 2, но в среднем темпе, без зрительного контроля.
- Выполнение движения, аналогичного упражнению № 1, но в быстром темпе, без зрительного контроля.
- Выполнение движения, аналогичного упражнению № 2, но в быстром темпе, без зрительного контроля.
Средства и методы:
Объяснение и демонстрация техники «связки», вычленив элемент и в целом движение. Объяснение механизма амортизации в локтевом суставе при срыве биты с «мертвой точки» в начальной стадии разгона. Многократный показ и применение занимающимися имитационных упражнений без биты и с битой.
7. ТЕХНИКА ОСНОВНОГО БРОСКА С ПОЛУКОНА
Упражнения:
- имитация техники броска в целом, без биты, в медленном темпе, с акцентом на узловых моментах, со зрительным контролем;
- имитация техники броска в среднем темпе, без биты и без зрительного контроля;
- выполнение «проводки» по движению с битой и со зрительным контролем формы целостного броска;
- выполнение имитации техники броска с битой, в медленном темпе, без зрительного контроля и выпуска биты;
- выполнение техники броска биты в среднем темпе, с выпуском ее в «квадрат». Стойка в метре от передней планки полу-кона;
- выполнение техники броска биты с выпуском ее в «квадрат» и контролем над плоскостью вращения ее в полете. Стойка – 2,5 метра от передней планки полу-кона;
- выполнение техники броска с выпуском биты в «квадрат» в самом быстром темпе, какой не сказывается отрицательно на технике движения. Контроль результата: плоскость вращения биты и величина угла перекоса в момент приземления;
- выполнение броска с 1 м от планки полу-кона в заднюю линию «города»;
- выполнение броска с 2 м от планки полу-кона в линию «марки»;
- выполнение броска с 3м от планки полу-кона в лицевую линию разметки «города;
Средства и методы:
Демонстрация и объяснение техники всего броска с остановкой внимания на трудных элементах. Многократный показ и применение метода информации в момент выполнения упражнения. Применение имитационных упражнений.
Упражнения для частичной перестройки и совершенствования отдельных деталей двигательного навыка.
Упражнения:
- Выполнение броска биты с акцентированным вращательным движением бедер.
- Выполнение броска биты с акцентированным разворотом плечевого пояса.
- Выполнение броска биты с акцентированным рывком локтя левой руки в сторону назад.
- Выполнение броска биты с отклонением туловища в сторону биты в фазе замаха и разгона.
- Выполнение броска биты с активной супинацией правой руки во всех звеньях.
- Выполнение броска биты с акцентированным положением «натянутого лука».
- Выполнение броска облегченной биты с целью точной корректировки отдельных движений в двигательном навыке.
- Выбивание фигур или городков с использованием дополнительных ориентиров, стимулирующих более точное выполнение движений.
- Выполнение броска утяжеленной биты со стандартного расстояния.
- Выполнение броска облегченной биты со стандартного расстояния.
- Выполнение броска биты с увеличенного расстояния.
- Выполнение броска облегченной биты с увеличенного расстояния.
Изометрические упражнения, стимулирующие напряжение отдельных звеньев, характерное для техники броска биты.
Список литературы
Алексеев, А.В. Себя преодолеть! / А.В. Алексеев. 3-е издание, переработанное и дополненное. – М.: «ФиС», 1985. – 192 с.
Белкин, А.А. Идеомоторная тренировка в спорте / А. А. Белкин. – М.: «ФиС», 1983. – 128 с.
Верхошанский, Ю.В. Программирование и организация тренировочного процесса / Ю.В. Верхошанский. – М.: «ФиС», 1985. – 176 с.
Всё об игре «Городки» и городошном спорте [Электронный ресурс]. – Режим доступа: http://www.gorodki.org (дата обращения: 15.02.2016).
Деревенский, Б.Г. История игры в городки / Б.Г. Деревенский // Альманах
«Русский мiръ», (СПБ). – 2008. – № 1. – С. 357–372.
Иванова, Л.С. Вариативность в подготовке метателей / Л.С. Иванова. – М.: «ФиС», 1987. – 112 с.
Игры богов [Электронный ресурс]. – Режим доступа: http://igrybogov.com/ (дата обращения: 04.03.2016).
Матвеев, Л.П. Основы спортивной тренировки / Л.П. Матвеев. – М.: «ФиС» 1977. – 271 с.
Матвеев, Л.П. Спортсменам о спортивной форме / Л.П. Матвеев. Издание 2-е, переработанное. – М.: «ФиС», 1966. – 56 с.
Никитин, Н.Д. Городки. Рожденная народом – современная спортивная игра (Теория, методика, практика) / Н.Д. Никитин. – Мурманск, 1990.
Пугачёв, В.Ф.. Городки. — Физкультура и спорт. (Спорт для всех) / В.Ф.Пугачёв.
– М.: 1990. – 128 с.
Алексахин, С.В. Прикладной статистический анализ Текст.: Учеб. пособ.
для вузов/ С.В.Алексахин, А.В.Балдин, А.Б.Николаев, В.Ю.Строганов. -М.: Изд-во «ПРИОР», 2001. 224с.
Бельский, И.В. Модель специальной силовой подготовленности пауэрлифтеров Текст./ И.В.Бельский// Теория и практика физической культуры. 2000. - №1. - С. 33-35.
Горчанюк, Ю. Теоретическое обоснование и проверка эффективности моделей перемещений и прыжков спортсменов в пляжном волейболе Текст./ Ю.Горчанюк// Физическое воспитание студентов творческих специальностей. Харьков: ХГАДИ, 2003. - № 6. - С. 72-87.
Духанин, В.М. Городошный спорт Текст./ В.М.Духанин. Краснодар, 2004.-51 с.12453. Духанин, В.М. Учебная программа по городошному спорту для ДЮСШ Текст./ В.М.Духанин. Краснодар, 2000.

Методическая разработка (664.67 KB)

