Контрольная работа
Список вопросов теста
Вопрос 1
Определите путь, пройденный пешеходом из пункта А в пункт В через пункт С. Масштаб карты - 1 деление - 2 км. В качестве ответа ввести только число - количество километров.
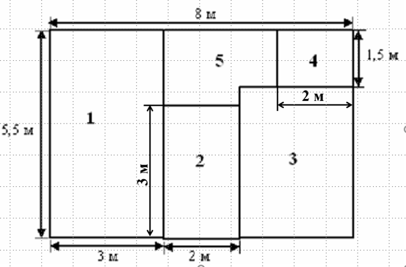
Вопрос 2
Определите площадь помещения № 5 по чертежу. В качестве ответа ввести только число - количество квадратных метров.

Вопрос 3
Муравей поднялся по стволу дерева, а затем спустился вниз. На графике показано, как менялась высота, на которой находился муравей, в зависимости от времени движения. Сколько метров преодолел муравей за 16 минут?
В качестве ответа ввести только число, единицы измерения не писать.

Вопрос 4
Сколько моделей можно создать при описании Земли:
Варианты ответов
- 2
- 4
- более 4
- множество
Вопрос 5
В таблице приведена стоимость перевозок между соседними железнодорожными станциями. Укажите номер схемы, соответствующей таблице.

Вопрос 6
На рисунке – схема дорог, связывающих города A, Б, В, Г, Д, Е, Ж, И и К. По каждой дороге можно двигаться только в одном направлении, указанном стрелкой. Сколько существует различных путей из города А в город К?

Вопрос 7
Дан фрагмент электронной таблицы:
|
|
A |
B |
C |
D |
|
1 |
7 |
7 |
1 |
|
|
2 |
5 |
2 |
4 |
|
|
3 |
10 |
1 |
6 |
|
В ячейку D3 введена формула =А2*В2+С2. Затем формула была скопирована в ячейку D2
Какое число появится в ячейке D2?
Вопрос 8
По обрывкам восстановить IP-адрес школьного сервера. В ответе записать IP-адрес: четыре числа, разделённые точками. Пробелы не делать.

Вопрос 9
Запишите 32-битовый IP-адрес в виде четырёх десятичных чисел, разделённых точками:
1111101010100010101111101001110
Вопрос 10
Запишите IP-адрес 12.45.22.180 в 32-битном виде. Разделительные точки не ставить.


